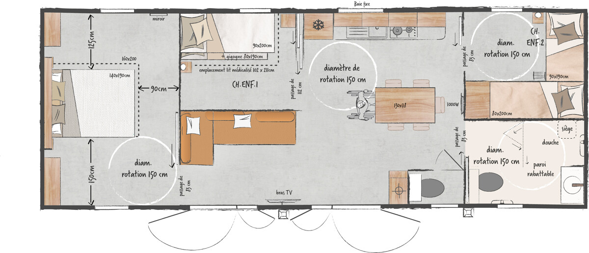
1175-3

50.00 m²

11.80 x 4.45 m

6

XXL

Beispiellose Geräumigkeit für das brandneue Mobilheim 1175 mit 3 Schlafzimmern! O'Hara setzt neue Maßstäbe mit einem 50 m² großen XXL-Grundriss, der speziell für Menschen mit eingeschränkter Mobilität konzipiert wurde. XXL-Duschraum, XXL-Wendebereiche, XXL-Türöffnungen von 83 cm, XXL-Hauptschlafzimmer. Maßgeschneiderter XXL-Komfort.

Galerie

Design

Vorhänge

Sofabezüge

Weitere Modelle

Mobilheimunion GmbH | Stockacher Str. 48 | 78357 Mühlingen
Tel.: +49 (0) 77 75 / 20 90 101


Kontakt | Impressum | Datenschutzerklärung | Geschäftskunden